Maidstone Road, Hadlow
A rare opportunity to purchase this substantial Grade II listed…
£1,000,000
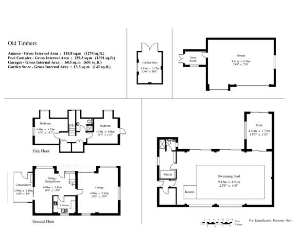
Old Timbers, Dairy Lane, Chainhurst, Kent, TN12 9ST
For Sale
£2,000,000
GUIDE PRICE £2,000,000-£2,200,000… Lambert and Foster are delighted to bring to market this handsome 17th Century unlisted 7 bedroom detached family home set within its 7.5 acres (tbv), benefiting from a recent overhaul including all new heating systems and roof. The property is set over three floors spanning just under 4,000 sq.ft. as well as a detached 2 bedroom annexe, an indoor swimming pool complex with plunge pool, sauna and gymnasium and extensive garaging, all set down a private road surrounded by fields.
The main House is full of charm with an abundance of character throughout. The Accommodation consist of a grand reception Hall, drawing room with fireplace, dining room with log burning stove, double aspect office, a recently fitted kitchen with a triple aspect. Utility and cloakroom to complete the ground floor. To the first floor there is master bedroom with dressing area, ensuite bath and shower room and balcony overlooking the garden, three further bedrooms, one with ensuite w.c. and one with ensuite bathroom, there is also a family shower room. A staircase leads to the second floor where there are three bedrooms, one with ensuite w.c. and access to the attic. Outside the driveway leads to a courtyard surrounded by the house, annexe, pool complex and garaging. The cottage comprises a sitting/dining room, conservatory, kitchen and attached garage on the ground floor with two double bedrooms and a shower room on the first floor. The pool complex consists of a swimming pool with Jacuzzi, a gym, shower and sauna. All sitting in approximate 7.5 acres of gardens, paddock, orchard, terrace, and ponds. The gardens are laid to lawn interspersed with shrubs, plants and a variety of young and mature trees.
VIEWING: By appointment only.
Paddock Wood Office: 01892 832325.
TENURE: Freehold.
SERVICES & UTILITIES:
Electricity supply: Mains. Water supply: Mains.
Sewerage: Private drainage services connected but not tested. Heating: Gas fired central heating via LPG overground gas tanks (3 tanks servicing house, annexe and swimming pool).
BROADBAND: Available as Standard and Ultrafast broadband.
MOBILE COVERAGE: EE good outdoor.
(Visit https://checker.ofcom.org.uk/en-gb/broadband-coverage or enquire with the office for more information).
LOCAL AUTHORITY: Maidstone Borough Council.
COUNCIL TAX: Band H and Band B (The Owl House).
EPC: Old Timbers: D (67) The Owl House: D (64).
COVENANTS: None known.
FLOOD & EROSION RISK: Property flood history: None. Rivers and the sea: Very low risk. Surface Water: Very low risk. Reservoirs: None. Groundwater: None.
(Visit flood-map-for-planning.service.gov.uk or enquire with the office for more information).
PHYSICAL CHARACTERISTICS: Details here
A rare opportunity to purchase this substantial Grade II listed…
£1,000,000
A modern, well proportioned, semi detached family house by Bovis…
£410,000
Owning a home is a keystone of wealth… both financial affluence and emotional security.
Suze Orman