Rother Valley Farm Bungalow, Lossenham Lane, Newenden, Kent, TN18 5QD
For Sale
£395,000
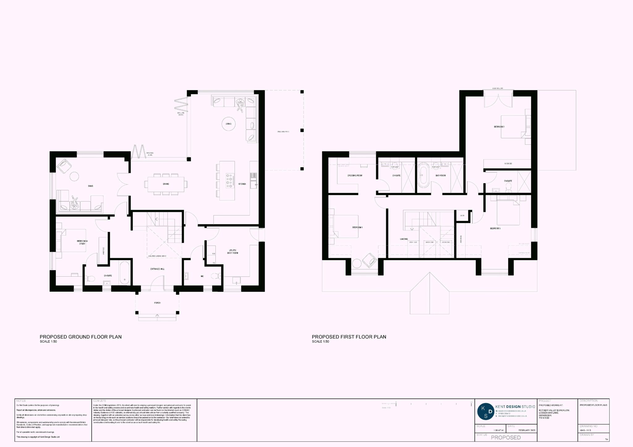
A development plot situated in a rarely available location along Lossenham Lane in Newenden, with fantastic views over the River Rother and beyond, with planning permission for the demolition of the existing derelict bungalow and construction of a detached, four bedroom property on a plot extending to 0.45 acres (0.18 hectares).
TENURE: Freehold with vacant possession.
LOCAL AUTHORITY: Ashford Borough Council, International House, Dover Place, Ashford, Kent TN23 1HU.
SERVICES AND UTILITIES: Prospective purchasers should rely on their own enquiries with regards to local availability of service connections.
VIEWING: By appointment only. Contact Will Jex for further information.
DATA PACK: A data pack containing copies of the relevant planning documents is available on request from the selling agents.
To download the full particulars please see the attached links below. Should you wish to have a copy of the brochure posted to you or discuss details further please don’t hesitate to contact Will Jex on the numbers provided.
Lambert & Foster are delighted to bring to market this…
£390,000
Lambert & Foster are delighted to bring to market this…
£525,000
Fromandez Drive, Horsmonden
Owning a home is a keystone of wealth… both financial affluence and emotional security.
Suze Orman