Thrupps Farm, Fen Pond Road, Ightham, Kent, TN15 9JD
For Sale
£1,100,000
Offered for sale to the market with no onward chain, an exciting opportunity to modernise an attractive, unlisted detached farmhouse, with planning permission in place for a further dwelling in the grounds which extend to 4.87 acres, situated in a superb location within the village of Ightham in Kent.
SITUATION: The property is located within the village of Ightham which offers a range of local amenities. The town of Sevenoaks, 5 miles to the west, provides a wide choice of additional shopping, educational and recreational facilities. Thrupps Farm is a short distance (3.2 miles) from Junction 2A of the M26, with onward connections to the M20, M25 and the national motorway network. Borough Green is 1.2 miles to the north-east, and has a mainline station offering direct services to central London in under an hour.
ACCESS: Thrupps Farm is set within private grounds off Fen Pond Road, and is approached via a private driveway that sweeps round to the farmhouse, which occupies a well-screened position from the road.
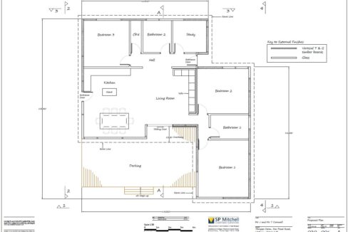
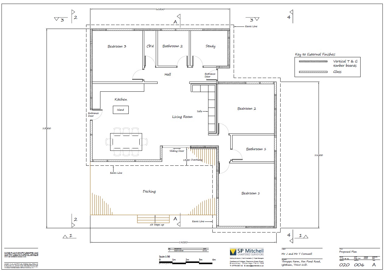
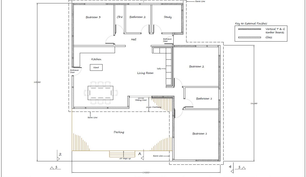
DATA PACK: A pack containing floor plans, and a site plan is available on request.
OVERAGE: The vendors will retain overage in respect of the land shaded blue on the illustrative sale plan, reserving 30% of any uplift in value created by planning permission for non-agricultural development within 30 years of completion. Further details on request.
COUNCIL TAX: Thrupps Farm is included in Band E.
EPC: Thrupps Farm has an EPC rating of F.
SERVICES: Mains water and electricity with private foul water drainage. Oil fired central heating. Broadband connected to the farmhouse.
METHOD OF SALE: Thrupps Farm is offered for sale by private treaty. The selling agents may set a date for best and final offers and interested parties are advised to register interest to be kept updated on the sales process.
TENURE: The property is offered for sale freehold with vacant possession.
PUBLIC RIGHTS OF WAY: There are no public rights of way that cross the property.
LOCAL AUTHORITY: Tonbridge & Malling Borough Council, Gibson Building, Gibson Drive, Kings Hill, West Malling, ME19 4LZ.
VIEWING: Strictly by appointment only. Please contact the selling agents Paddock Wood office with enquiries to Will Jex or Alan Mummery.
To download the full particulars please see the attached links below. Should you wish to have a copy of the brochure posted to you or discuss details further please don’t hesitate to contact us on the numbers provided.
We are delighted to be selling a plot on a…
£600,000
An outstanding development of just five distinctive homes by independent…
£795,000
Owning a home is a keystone of wealth… both financial affluence and emotional security.
Suze Orman